Hirschen: 1.5- bis 3.5-Zimmer-Wohnungen

Gemeinschaftlich, genossenschaftlich, entspannt wohnen im Hirschen

Der Hirschen ist ein historisches Haus, das im Minergiestandard umgebaut und renoviert wurde. Der Hirschen liegt am Rande der Altstadt von Diessenhofen TG. Die Bewohner/innen pflegen einen regen nachbarschaftlichen Austausch und organisieren gemeinsam das Leben im Haus. Neue Bewohnerinnen und Mitbewohner sind herzlich willkommen!

Wir vermieten moderne Wohnungen, alle mit Lift erreichbar. Die Wohnungen mit ihrem hohen Ausbaustandard, neuen Parkettböden und frischen Farben sind wahre Bijous. Alle Bewohnerinnen und Bewohner geniessen und benutzen gemeinsam die Loggia, drei verschiedene Aussen-Sitzplätze, den Gemeinschaftsraum, das Gästezimmer und die Waschküche.

Interessiert? - Auskunft und Besichtigung: Renate Dürr, 052 235 03 20, renate.duerr@gesewo.ch.

3-1/2-Zimmer-Wohnung, Nr. 1, 79m2

Die modern gestaltete Wohnung ist 79m2 gross und befindet sich im Erdgeschoss. Der Wohnraum mit Küche ist offen gestaltet. Die Wohnung ist rollstuhlgängig und verfügt über ein Reduit und Wandschränke.
Miete 1'413 Franken plus Nebenkosten 115 Franken, Pflichtdarlehen* 40'000 Franken.

1-1/2-Zimmer Wohnung, Nr. 2, 49 m2

Die modern gestaltete Wohnung ist 49m2 gross und liegt im Erdgeschoss. Sie eignet sich für jüngere wie auch ältere Personen und ist rollstuhlgängig. Eine Nutzung als Praxisraum oder Atelier/Büro wäre ebenfalls denkbar.
Miete 941 Franken plus Nebenkosten 115 Franken, Pflichtdarlehen* 31‘000 Franken.

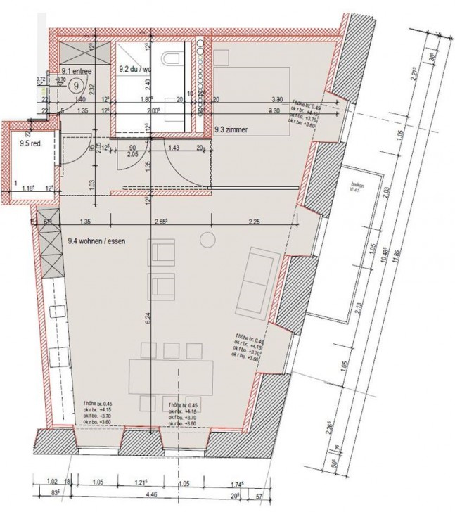
3-1/2-Zimmer-Wohnung, Nr. 5, 91m2, behindertengerecht

Die loftähnliche modern gestaltete Wohnung ist 91m2 gross und befindet sich im 1. Stock. Sie verfügt Wandschränke und ein Reduit. Die Wohnung hat keinen eigenen Balkon, die grosse Loggia befindet sich jedoch direkt vor der Eingangstüre.
Miete 1'680 Franken plus Nebenkosten 174 Franken, Pflichtdarlehen* 44'000 Franken.

2-1/2-Zimmer-Maisonette-Wohnung Nr. 12, 64 m2

Die sehr modern gestaltete 2.5-Zimmer-Wohnung verfügt über 64m2, sie befindet sich im 2. Stock. Der Wohnraum mit Küche ist offen gestaltet. Im 3. Stock befindet sich ein ebenfalls offenes Zimmer mit Dachschrägen.
Miete 1'340 Franken plus Nebenkosten 124 Franken, Pflichtdarlehen* 35'000 Franken.

2-1/2-Zimmer-Dachwohnung Nr. 13, 72 m2

Die loftähnliche modern gestaltete 2.5-Zimmer-Wohnung verfügt über 72m2 und befindet sich im 2. Stock. Die Dachschrägen verleihen der Wohnung einen Hauch von Nostalgie. Das abgetrennte Réduit bietet ausreichend Abstellplatz. Die Wohnung ist per 1. Oktober 2018 frei.
Miete 1‘399 Franken plus Nebenkosten 134 Franken, Pflichtdarlehen* 38‘000 Franken

*Das Pflichtdarlehen

*Mit dem Pflichtdarlehen beteiligen sich alle Bewohner/innen an der Finanzerung der Liegenschaften. Das Pflichtdarlehen beträgt 10% des Anlagewerts der Wohnung. Es kann bis zu 90% aus dem Pflichtdarlehensfonds finanziert werden!

Erreichbarkeit/Lage/Infrastruktur

Der Bahnhof ist in 7 Minuten, Coop/Migros/Post/Bank und der Rhein sind in 3 Minuten zu Fuss erreichbar, Arzt und Zahnarzt sind ebenfalls in der Nähe. Die Bahnfahrt nach Schaffhausen dauert 14 Minuten.

Reizvolles Mittelalter-Städtchen Diessenhofen

Enge Gassen und schmale, hohe Häuser prägen die mittelalterliche Altstadt, die übrigens die grösste ist im ganzen Thurgau. Wer dem Rheinufer oder der Stadtmauer entlang spaziert, entdeckt immer wieder original Details aus der Kyburgerzeit. Diessenhofen besitzt seit 1178 das Stadtrecht. Wer nur mittelalterliche Atmosphäre vermutet, wird überrascht von einem faszinierenden Spannungsfeld von Mittelalter und Moderne. Mehr über Diessenhofen: www.diessenhofen.ch.

Interesse am Leben im Hirschen Diessenhofen?

Füllen Sie das Kontaktformular aus, wir melden uns bei Ihnen! Oder rufen Sie uns an: Renate Dürr, 052 235 03 20, renate.duerr@gesewo.ch.

Zurück