Individuell und gemeinschaftlich leben

Die 16 privaten Wohneinheiten mit 38 bis 66 m2 Fläche sind als (Klein-) Lofts konzipiert. Sie können – je nach den individuellen Bedürfnissen - in bis zu drei Zimmer unterteilt und von bis zu zwei Personen bewohnt werden. Alle Wohnungen sind mit Dusche/WC und einer kleinen Küche ausgerüstet. Kellerabteile sowie Schränke im Hausflur gehören dazu.

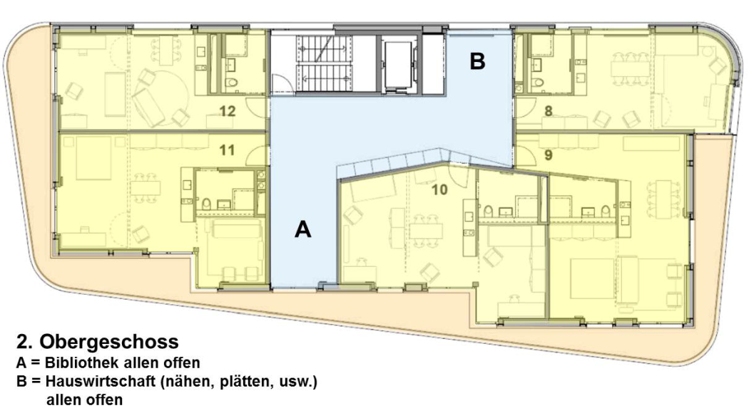
Die in den unten angefügten Geschossplänen rot gefärbten Bereiche werden gemeinschaftlich genutzt und unterhalten. Die blau markierten können tageweise/stundenweise individuell genutzt werden. Die Hausgemeinschaft profitiert so von insgesamt 369 m2 gemeinsamer Fläche.

Dazu gehören:

  • grosszügiger Aufenthaltsraum mit Cheminée, gemütlicher Sitzgruppe und grossem Esstisch,
  • bestens ausgerüstete Gemeinschaftsküche,
  • Gartenterrasse mit wunderschönem, sonnigem Garten,
  • Büroarbeitsnische mit PC, Fotokopierer und Drucker,
  • offenes Webatelier,
  • Bibliothek,
  • Haushaltnische zum Bügeln, Nähen usw.,
  • Fitnessecke mit Geräten,
  • Werkstatt,
  • Mal- und Kreativatelier,
  • Naturkeller für Gemüse und Wein,
  • Waschküche mit Trocknungsraum,
  • ein zumietbares Gästezimmer,
  • Bistroraum mit Fernseher und Küche, der bei Bedarf für Feste im intimeren Rahmen reserviert werden kann,
  • Bad und Badewanne

Die Mieterinnen und Mieter bezahlen Kostenmiete und die Nebenkosten für den privat bewohnten Teil und anteilmässig für die gemeinschaftlich genutzten Teile.